DIY 기술지원

철천지 폴딩도어 및 스페이스 선반 개발중입니다.
2010-07-27|조회수: 2232|작성: 77g
날참 덥습니다.. 구름이.. 그냥 머물러 있네요.

사무실 한켠이 정리가 안되어 있어.. 정리 하기로 했습니다.
얼마전에 방송에 나갔을때 마땅히 촬영 장소가 없었던것 같아.. 이걸 정리 하기로 했지요

낮은장 하나 만들어서 전동 공구들 넣고..
벽에 걸것들 정리하니.. 짜잔.. 공방이 하나 탄생 했네요.
예전에 이곳에서 케이블 티브이 방송 촬용도 많이 했었거든요. 이제 다시 촬영을 해야 할것 같습니다.


커피 부분도 정리를 했습니다.

이젠 실력이 좋아져서.. 한쪽에서는 개발을. 한쪽에서는 생산을 했습니다.
요술 선반 입니다..
침상형 슬라이딩 침대도 생산을 했고요..


만들면 아래의 형태가 되는걸.. 뒷부분을 곡선을 주었습니다.
그외 침대 입니다.

이건 홈판 각재 인듯 하네요..





이주임은 직원들을 계속 가르치고 있고요..

일부직원은.. 신제품 개발 했습니다.
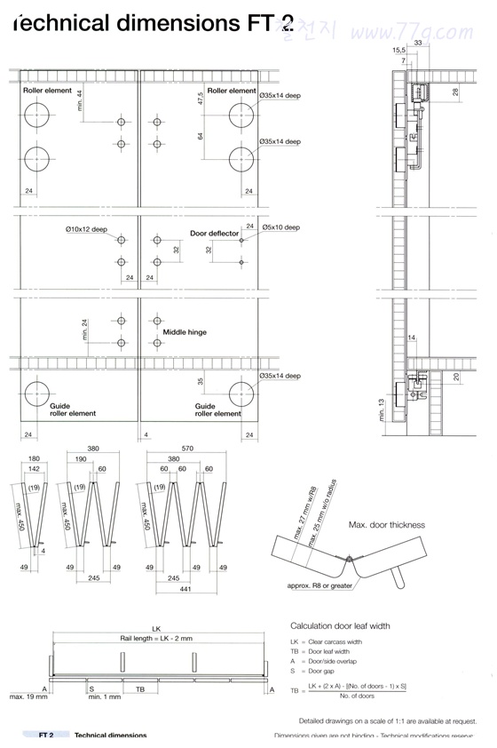
요즘.. 문짝 개발에 필이 받아서.. 폴딩 folding 도어 를 개발 중입니다. 오래전부터 개발
요청이 들어 왔었거든요.



도면을 기반으로 이것 저것 만들어는 보는데..

현실은 좀 맞지가 않네요.. 그래도.. 열심히 하다보면 노하우가 생기 겠지요.




아무리 재능이 있어도.
노력하는 사람 못이기지요..
우리 직원들은 이렇게.. 이분야에서 인정받기 위해 노력을 하고 있지요.
우리 자신과의 싸움이라고 생각 하고 하나 하나 재미있는 회사를 만들어 나가고 있습니다.
오늘도.. 화이팅...
